岩石山
罗克希尔提交的新土地规划显示了快餐店和一家建筑公司的总部。

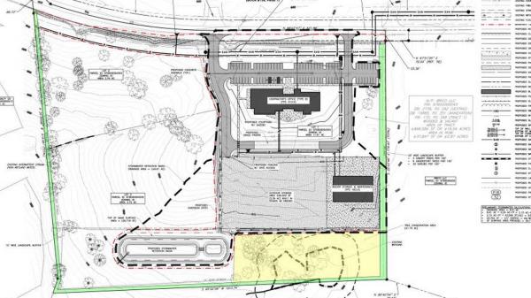
Poettker建筑公司向该市提交了一份主要的场地规划,用于其东南公司总部。占地20英亩的场地位于长草地路2657号,靠近波特路的I-77以东,周围环绕着工业物业,其中包括奥地利制造商STIWA US的北美总部。
Poettker的计划包括一个地块上的两栋建筑,以及该地块上的两个未来地块。提交的计划显示了一个超过27,000平方英尺的办公楼和一个10,000平方英尺的存储或维护大楼。办公楼将是两层。该基地还将拥有近10万平方英尺的户外存储空间。
如果在现场的两个地块中的一个或两个未来增加了一个20,000平方英尺或更多的建筑,它将不得不回到城市,以获得自己的主要场地规划批准。
提交的平面图显示,长草地有两个入口,前面的停车场被列为承包商的办公室。在办公室后面,一个驱动器连接到室外存储和存储或维护大楼。这两个未来的地块位于波特曼大楼的西面,一个在另一个后面,位于长草地附近。每块地差不多有4英亩。
提交城市审查的另一个主要的场地规划涉及Sharonwood项目。房地产开发商沃伦·诺曼公司(Warren Norman Company)的子公司Landover One今年早些时候开始了对印度虎克(Indian Hook)、Celanese Road和Sharonwood Lane地区近8英亩土地的合并和重新规划。
石山市议会(Rock Hill City Council)启动了合并计划,但在开发商的要求下,推迟了最终投票,直到规划委员会批准了主要的场地规划审查。该计划将把Sharonwood Lane的5块住宅用地和India Hook的3块未开发地块变成商业地产。

提交的平面图显示了五栋建筑中混合的餐厅和零售空间。项目对面的两栋建筑都将是带汽车餐厅的餐厅。这两处房产的挂牌面积均为2500平方英尺(约合人民币457平方米),外加500英尺(约合人民币457平方米)的露台空间。第三家稍大一点的得来速餐厅位于塞拉尼斯大道以北。它的面积将达到2900平方英尺(约合人民币3900平方米),带有一个400平方英尺(约合人民币3900平方米)的露台。
在这两家餐厅之间,沿印度街(India Hook)坐落着一座面积达1.3万平方英尺的零售或办公大楼,还有一座500平方英尺的露台。提交的平面图显示,该建筑分为三个空间。在最大的大楼后面,距离两条主要高速公路最远的地方,是一座7400平方英尺的办公或零售大楼。
发表评论
暂时没有评论,来抢沙发吧~